Ein echtes Platzwunder, geräumige DHH für Ihre Familie mit schönem Garten!

Erlangen, Erlangen (Bruck)
Vermietet
Ein echtes Platzwunder, geräumige DHH für Ihre Familie mit schönem Garten!
Erlangen, Erlangen (Bruck)

Übersicht

Objekt-ID: E-0205FI
  • Haus
  • Immobilientyp
  • 7
  • Zimmer
  • 3
  • Badezimmer
  • 220
  • 450
  • Grundstück m²

Details

Aktualisiert am Februar 14, 2026 bei 7:29 p.m.
  • Objekt-ID: E-0205FI
  • Wohnfläche: 220 m²
  • Grundstücksfläche: 450 m²
  • Zimmer: 7
  • Badezimmer: 3
  • Garagengröße: 1 Autostellplatz
  • Baujahr: 1982
  • Immobilientyp: Haus
  • Immobilienstatus: Vermietet

Weitere Details

  • Heizungsart: Zentralheizung
  • Anzahl Etagen: 3,0
  • Kaution: 3 Monatsnettomieten
  • Anzahl Garagenstellplätze: 1
  • Balkone: 2
  • Terrassen: 1
  • Zimmer insgesamt: 7
  • Anzahl Stellplätze: 1
  • Art der Ausstattung: gehoben
  • Befeuerung: Öl
  • Badausstattung: Dusche, Badewanne, Fenster im Badezimmer
  • Küche: Einbauküche
  • Stellplatzart: Garage
  • Zustand: gepflegt
  • Immobilie ist verfügbar ab: Sofort frei

Beschreibung

Diese sehr geräumige Doppelhaushälfte liegt auf einem schönen Grundstück mit angelegtem Garten und befindet sich in einer Nebenstraße von Erlangen-Bruck, zentral und trotzdem ruhig gelegen. Das Haus wurde in Massivbauweise erstellt und zuletzt 2023 modernisiert. Der offene Grundriss mit großzügigen Fensterflächen bietet ein lichtdurchflutetes Ambiente und großzügiges Raumgefühl. Einladend wirkt vor allem der offene Wohn-Essbereich mit behaglichem Kachelofen und direktem Zugang zu der teilüberdachten Sonnenterrasse und dem schön angelegtem Garten. Die Innenausstattung besticht durch stilvoll ausgewählte hochwertige Materialien und Elemente. In Ausführung und Ausstattung erwartet Sie gute Qualität mit vielen durchdachten Details. Das geräumige Haus ist geeignet für eine große Familie, Arbeitsnachweis und Schufa-Auskunft sind erforderlich. Als Mieter finden Sie dort alles, was das alltägliche Leben angenehm macht, in unmittelbarer Nähe!

Das Anwesen liegt im fränkischen Regierungsbezirk Mittelfranken und befindet sich in der Großstadt Erlangen, in zentraler und dennoch ruhiger Wohnlage von Erlangen-Bruck. Die kreisfreie Stadt ist Universitätsstadt, Sitz des Landratsamts des Landkreises Erlangen-Höchstadt und mit ca. 114.000 Einwohnern die kleinste der insgesamt acht Großstädte Bayerns. Mit den angrenzenden Städten Forchheim, Fürth und Nürnberg bildet Erlangen eine der drei Metropolen in Bayern. Gemeinsam mit ihrem Umland bilden diese Städte die Europäische Metropolregion Nürnberg, eine von 11 Metropolregionen in Deutschland. Die Stadt Erlangen wird vor allem durch die Friedrich-Alexander-Universität Erlangen-Nürnberg und den Technologiekonzern Siemens geprägt. Hervorragende Infrastruktur mit Kindergärten, Schulen und Universitäten, Ärzten und Apotheken, diversen Einkaufsmöglichkeiten, Kneipen, Bars, Restaurants und kulturellen Einrichtungen ist vorhanden. Verschiedene Sportvereine bieten ein umfangreiches Freizeitangebot. Bus und Bahn sind zu Fuß bequem erreichbar, ein gut ausgebautes Radverkehrsnetz führt durch das gesamte Stadtgebiet. Ebenso gegeben sind gute Anbindungen durch die Autobahn A3 und Bundesstraße B4 in Richtung Forchheim, Bamberg oder Nürnberg.

Raumangebot & Kriterien
– Geräumige DHH, 2 Etagen, 7 Zimmer, 5 Schlafzimmer
– 2 Balkone, teilüberdachte Terrasse, Südostausrichtung
– Angelegter Garten, gewachsener Baumbestand, großzügige Holzhütte
– Moderne Einbauküche mit Markengeräten, kleine Theke mit 2 Stühlen
– Cerankochfeld, Backofen, Spülmaschine, Mikrowelle, Apothekerschrank
– 3 moderne Design-Bäder, Badewanne, Dusche, Fenster, Gäste-WC
– Garderobe mit Einbauschrank, Schlafzimmer Einbauschränke, Sofa
– Hochwertiger Parkettboden, Feinsteinfließen, Eingang Travertinfliesen
– Bodentiefe Holzfenster, Isolierverglasung, teils elektrische Rolladen
– Zentralheizung, Energieträger Öl, Öltank 5.000 Liter
– Großer Kachelofen mit separat beheizbaren Sitzbänken
– Dämmung Außenwand ca. 6 cm Styroporschicht, Deckenhöhe 2,50 m
– 2 Abstellräume, beheizbarer Hobbyraum, Saunaraum
– Voll unterkellert, Kellerraum, Wasch- und Trockenraum, Heizraum
– Garage, 2 Außenstellplätze, DVBT, VDSL, Kabelanschluss

Alle Angaben sind ohne Gewähr und basieren ausschließlich auf Informationen, die uns von unserem Auftraggeber übermittelt wurden. Wir übernehmen keine Gewähr für die Vollständigkeit, Richtigkeit und Aktualität dieser Angaben. Das Angebot ist freibleibend, Irrtum und Zwischenverkauf vorbehalten. Bildmaterial zeigt vereinzelt Visualisierungen. Besichtigungen sind nur nach Vereinbarung möglich. Bitte teilen Sie uns nach Erhalt des Exposés Ihr Zeitfenster für Ihren Wunschtermin mit, damit wir diesen entsprechend abstimmen können.

Energieeffizienz

  • Energieausweis-Art: Verbrauch
  • Engergieausweis gültig bis: 17.05.2033
  • Energieverbrauchskennwert: 111,80 kWh/(m²*a)
  • Warmwasser im Energieverbrauch enthalten: ja
  • Primärenergieträger: Öl
  • Energieeffizienzklasse: D
  • Energieausweis-Ausstellungsdatum: 17.05.2023
  • Energieausweis-Gebäudeart: Wohngebäude

Energieklasse

  • Energetische Klasse: D
  • Globaler Energieleistungsindex: 111,80 kWh/(m²*a)
  • A+
  • A
  • B
  • C
  • 111,80 kWh/(m²*a) | Energieklasse D
    D
  • E
  • F
  • G
  • H

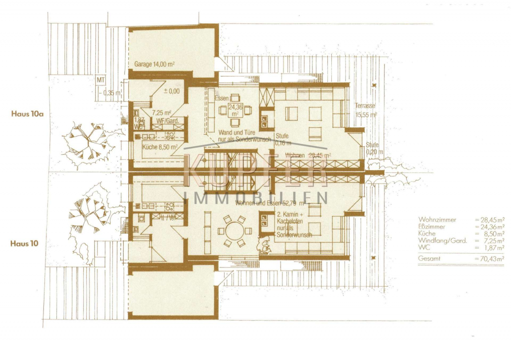
Grundrisse

image

Beschreibung:

image

Beschreibung:

image

Beschreibung:

image

Beschreibung:

  • Stadt Erlangen
  • Bundesland/Landkreis Bayern
  • Postleitzahl 91058
  • Region Erlangen (Bruck)
  • Land Deutschland

Walkscore

Besichtigung planen

Ihre Information

0 Rezension

Sort by:
Leave a Review

Leave a Review

Compare listings

Vergleichen
Marianne Albani
  • Marianne Albani
Zum Inhalt springen